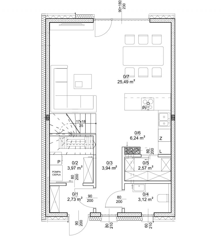
Rzut parteru
Rzut piętra
Przekrój budynku
Status:
Dostępny
Cena:
(+48) 500-355-904
Dane ogólne:
Powierzchnia użytkowa
93,9 m2
+ Strych
35,6 m2
Powierzchnia działki
345 m2
Parter:
0/1 Wiatrołap
2,73 m2
0/2 Pralnia
3,97 m2
0/3 Korytarz
3,94 m2
0/4 WC
3,12 m2
0/5 Spiżarnia
2,57 m2
0/5 Spiżarnia
6,24 m2
0/7 Salon
25,49 m2
Piętro:
1/1 Korytarz
4,94 m2
1/2 Sypialnia
9,59 m2
1/3 Garderoba
5,63 m2
1/4 Łazienka
5,81 m2
1/5 Pokój
10,43 m2
1/6 Pokój
9,44 m2